Die Planungen für den Umbau unserer Erlöserkirche gehen auf die Zielgerade. Im späten Sommer 2026 geht es los und wir bauen um. Verfolgen Sie hier den aktuellen Stand des Umbaus und erkunden sie den langen Weg der Planungen.
Januar 2026 - Was aktuell passiert:
- Die Pläne liegen bereit. Das Architekturbüro legt einen Zeitplan vor: Wenn alles gut läuft, können die Bauarbeiten im September 2026 beginnen.
- Der Kirchenvorstand beschließt die Beauftragung des Architekturbüros mit den weiteren Arbeiten (Leistungsphasen). Im Architekturbüro beginnen nun die Abstimmungen mit den sogenannten Fachplanern, zum Beispiel für die Elektroinstallationen, Heizung - Lüftung - Sanitär oder auch das Tragwerk, also die Statik.
Chronik - der lange Weg zum Umbau
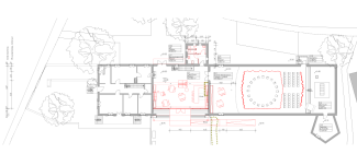
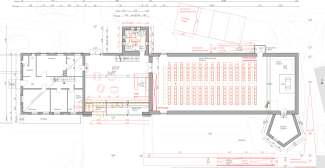
12. Januar 2026: Das Architekturbüro legt den Zeitplan für den Umbau vor. Läuft alles nach Plan, geht es im September los.
15. Dezember 2025: Der Verteilungsausschuss der Landeskirche stimmt dem Antrag der Erlöserkirche einstimmig zu. Das bedeutet einerseits, dass die Baupläne so umgesetzt werden dürfen, andererseits, dass der Umbau von der Landeskirche finanziell gefördert wird.
4. Dezember 2025: Treffen mit MIchael Gsaenger, dem Erben der Urheberrechte der ursprünglichen Architektenpläne. Er ist mit den geplanten Umbauarbeiten einverstanden.
25. November 2025: Pfarrer David Scherf darf das Quartierszentrum vor dem Entscheidungsgremium vorstellen. Noch am selben Tag entscheidet die Jury, dass die Erlöserkirche als sogenanntes LEADER-Projekt gefördert wird.
18. November: Der Kirchenvorstand beschließt den Kosten- und Finanzierungsrahmen für das Bauprojekt mit einem Gesamtvolumen von ca. 800.000€.
31. Oktober 2025: Am Reformationstag reichen wir einen Antrag auf Förderung des Umbaus zum "Quartierszentrum Amberg Ost" ein.
19. Oktober 2025: Im Rahmen einer Gemeindeversammlung stellt der Kirchenvorstand der Gemeinde die Umbaupläne vor. Die Pläne finden große Zustimmung.
23. September 2025: m8 (Architekturbüro) stellen die aktuellen Pläne vor, die jetzt auch im Wesentlichen die endgültigen sind
18. September 2025: Der Antrag auf Förderung wird bei Aktion Mensch eingereicht.
25. Juli 2025: Die Baupläne nehmen immer mehr Gestalt an.
25. Mai 2025: Das Architekturbüro stellt mögliche Varianten für einen Aufzug in das OG vor.
6. November 2024: Entscheidung, einen Antrag auf Förderung bei Aktion Mensch zu stellen. Barrierefreiheit soll ein wesentliches Ziel des Umbaus sein.
22. März 2024: Wie wollen wir in Zukunft heizen? Im Frühjahr 2024 berät uns ein Energiefachberater zur zukünftigen Heizung.
12. Januar 2024: Die Architekten präsentieren ihre erste Ideen, wie die Erlöserkirche in Zukunft aussehen könnt:
19. Juli 2023: drei Architekturbüros sollen sich vorstellen. Ein Büro sagt kurzfristig ab. Am Ende entscheidet der Kirchenvorstand mit dem Büro m8 aus München zusammenzuarbeiten.
23. Mai 2023: Die Aufgabenstellung für das zukünftige Architekturbüro wird erstellt. In den folgenden Wochen werden verschiedene Architekturbüros eingeladen sich vorzustellen und ein Angebot für die Umbauarbeiten vorzustellen.
07. April 2022: Wieder ein Zuständigkeitswechsel im Landeskirchenamt. Ulrich Arndt wird der für die Erlöserkirche zuständige Architekt. Bei einem ersten Treffen von Bauauschuss, Ulrich Arndt und Dekanatsarchitektin Ulrike Weich, wird ein weiteres Mal der aktuelle Bestand aufgenommen und ermittelt, was in Zukunft an Bedarf da ist.
Der Entschluss steht: ein neuer Versuch für einen Umbau soll gestartet werden.
März 2020: Corona hat die Welt im Griff, in Deutschland wird der erste Lockdown ausgerufen. Planungen für einen Umbau rücken in weite Ferne.
April 2019: Ein neuer Pfarrer und ein neuer Landeskirchlicher Architekt. Alles wird neu gesichtet. Alle Beteiligten sind sich einig. Endlich muss etwas passieren.
2013-2018: Pläne werden entworfen und verworfen; die zuständigen Architekten im Landeskirchenamt wechseln, jede*r möchte seine Handschrift in den Umbau einbringen; da die Pläne immer teurer werden, kommt es zu keiner weiteren Planung und Umsetzung.
2012/2013: Der Kirchenvorstand beschließt mit seinem Vorsitzenden Pfarrer Dr. Johannes Blohm, dass die Kirche mit Gemeindesaal barrierefrei umgebaut werden soll.
